Bühnenkonstruktionen / Fördertechnik – wir übernehmen die statischen Berechnungen für Sie Referenzen der maks gmbh Ingenieurwerkstatt Bauwesen
Bühnenkonstruktionen und Fördertechnik kommen hauptsächlich im industriellen Rahmen zum Einsatz. Kein Projekt ist wie das andere, umso wichtiger ist eine exakte Planung, die tatsächlich auch zu einem realisierbaren / machbaren Bau führen kann und wird.
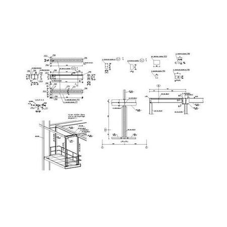
Hier sehen Sie einige unserer Referenz-Projekte aus dem Bereich Bühnenkonstruktionen / Fördertechnik:
Gerüste mit Begehungen und Fördertechnik
Abb. 1 - 2: Trägergerüst für Automobilindustrie
Abb. 3: Fördertechnikbühne auf Bestand für Automobilindustrie
Abb. 4: Traggerüst, Bühnen und Treppenanlage in Bestand für Chemieindustrie
Industriell genutzte Bühnen / Fördertechnik planen lassen
Wir planen sowohl für Bestandsbauten als auch für Umbauten, Anbauten oder für Modernisierungsprojekte. Auch im Rahmen der statischen Berechnungen für Bühnenkonstruktionen, Fördertechnik und ähnliche Bauprojekte bieten wir unsere Dienstleistungen deutschlandweit an.
Durch unsere vielen erfolgreich vollendeten Aufträge können wir auf einen Erfahrungsschatz zurückgreifen, der auch für Sie von Vorteil sein kann.
Lassen Sie uns über Ihr Projekt reden. Wir freuen uns auf Ihren Anruf!
